Sus High Performance Air Filter
- Sus Housing
- 고압(10~50bar) 필터 제작 가능

사양 (Specification)
| Model |
Flow Rate @ 7bar(㎥/min) |
Element Q'ty |
Port Size |
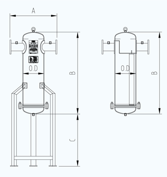
Dimension |
| Main |
Pre |
Line |
Coalesent |
Adsorbent |
| MAFS-Series |
40㎛ |
5㎛ |
1㎛ |
0.01㎛ |
0.01ppm |
ea |
mm |
inch |
A(mm) |
B(mm) |
C(mm) |
OD(mm) |
| MAFS-15A |
2.2 |
1.8 |
1.2 |
1.0 |
1.0 |
1 |
15A |
PT 1/4" |
110.5 |
246 |
- |
75 |
| MAFS-20A |
5.7 |
3.5 |
2.8 |
1.9 |
1.9 |
1 |
20A |
PT 3/4" |
110.5 |
309 |
- |
75 |
| MAFS-25A |
8.0 |
5.7 |
5.0 |
3.4 |
3.4 |
1 |
25A |
PT 1" |
110.5 |
432 |
- |
75 |
| MAFS-40A |
17 |
14 |
11 |
10 |
10 |
1 |
40A |
PT 1/2" |
144 |
700 |
- |
114.3 |
| MAFS-50A |
29 |
25 |
22 |
14 |
14 |
1 |
50A |
PT 2" |
185 |
925 |
- |
139.8 |
| MAFS-65A |
58 |
49 |
48 |
28 |
28 |
2 |
65A |
FLG 2 1/2" |
650 |
1198 |
821 |
216.3 |
| MAFS-80A |
88 |
73 |
72 |
42 |
42 |
3 |
80A |
FLG 3" |
650 |
1205 |
795 |
267.4 |
| MAFS-100A |
139 |
120 |
110 |
70 |
70 |
5 |
100A |
FLG 4" |
700 |
1220 |
779 |
318.5 |
| MAFS-125A |
162 |
145 |
132 |
84 |
84 |
6 |
125A |
FLG 5" |
700 |
1180 |
770 |
355.6 |
| MAFS-150A |
282 |
221 |
176 |
112 |
112 |
8 |
150A |
FLG 6" |
700 |
1180 |
770 |
355.6 |
| MAFS-200A |
447 |
331 |
308 |
196 |
196 |
11 |
200A |
FLG 8" |
830 |
1295 |
742 |
457.2 |
| MAFS-250A |
733 |
555 |
528 |
330 |
330 |
19 |
250A |
FLG 10" |
996 |
1580 |
750 |
609 |
| MAFS-300A |
1103 |
850 |
792 |
504 |
504 |
30 |
300A |
FLG 12" |
996 |
1720 |
640 |
711.2 |
- 상기 사양은 품질 향상을 위하여 변경 될 수 있습니다.
Dimension